Cagliari area metropolitana - Via Pisacane
Stato: Conclusa
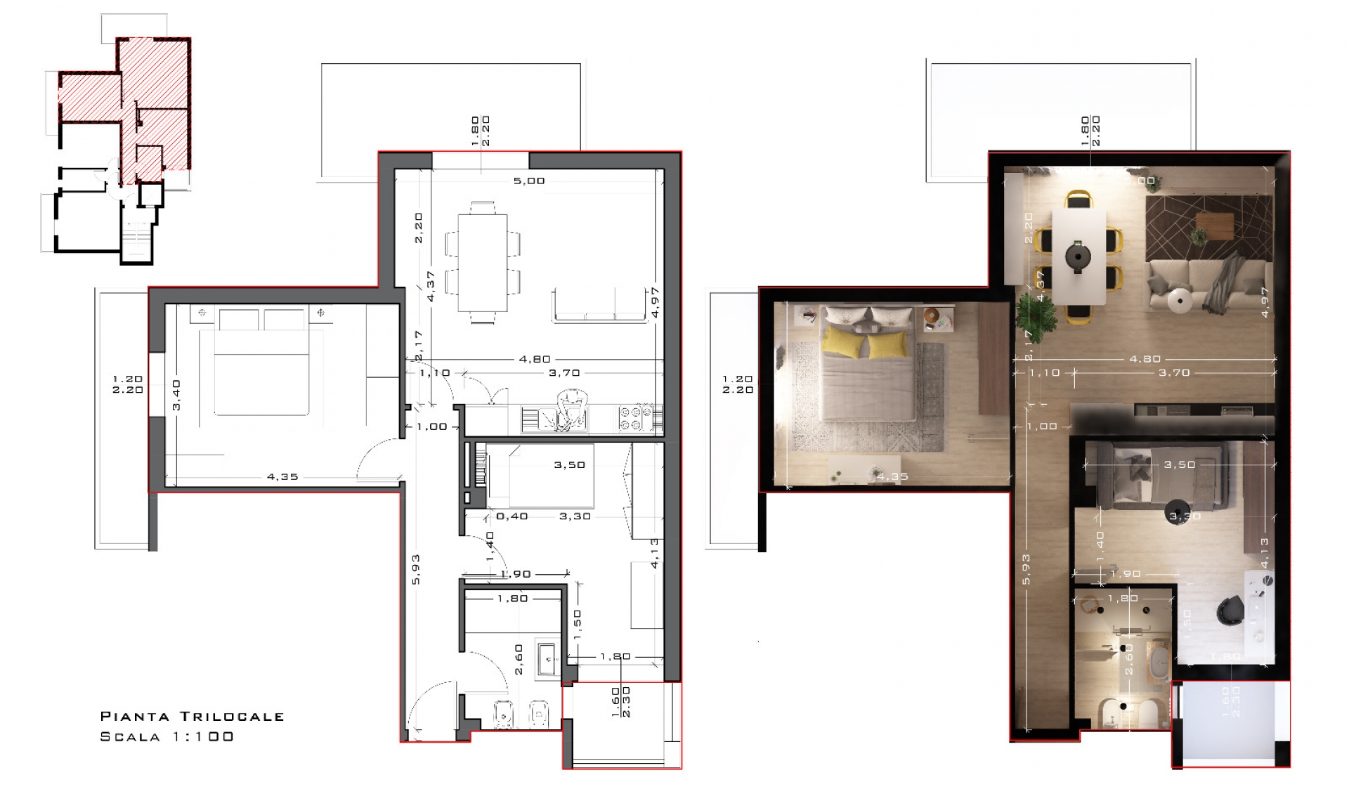
Operazione di flipping immobiliare con ristrutturazione e frazionamento di un appartamento di 125 mq al secondo piano di una palazzina signorile a Quartu Sant’Elena nell'Area Metropolitana di Cagliari, in una zona dinamica e ben servita, vicina al lungomare e ai principali servizi.
Il quartiere presentava una forte richiesta di unità di metratura contenuta, non adeguatamente soddisfatta dall’offerta locale composta prevalentemente da immobili anni ’70-’80 di ampie dimensioni. L’intervento ha previsto una nuova distribuzione degli spazi con la realizzazione di:
- Bivano da 47 mq
- Trivano da 73 mq
Entrambe le unità sono state progettate con finiture moderne di alta qualità e soluzioni funzionali, perfettamente in linea con la domanda di single e giovani coppie.
L’operazione ha rispettato pienamente le previsioni iniziali, con:
- Durata totale: 14 mesi
- ROI Operazione: 48%
Il successo di questa iniziativa sottolinea come l'identificazione di asset sottovalutati nel mercato immobiliare e la loro riqualificazione generi nuove unita' di valore elevato, che soddisfano pienamente le nuove specifiche domande del mercato corrente.